Un monumento único en el Aljarafe medieval
Radiografía de la Ermita de Cuatrovitas
El Resultado de más de ocho siglos de historia hacen de Cuatrovitas un monumento único
El alminar
El alminar está construido íntegramente en ladrillo. Tiene una planta cuadrada de algo más de 10 pies de lado en la base (3,3 m frente a 3,14 m) y de exactamente 10 pies en la parte superior de la caña. Las cuatro caras presentan una serie de tres huecos con ventanas geminadas, con alturas diferentes condicionadas por el ascenso de las escaleras por el interior de la torre.
La escalera de la torre gira a la izquierda alrededor de un machón central de planta cuadrada de 3 pies de lado (94 cm), con un hueco de 2 pies (63 cm) que deja 1 codo (47,14 cm) para el ancho de los muros.
Cada tramo consta de 4 cuatro escalones de 1 pie de huella (31,43 cm) y 23,5 cm de altura, de manera que cada tramo asciende dos codos (94 cm) entre los descansillos. Esto supone que cada revolución completa sobre el machón implica un ascenso de 8 codos (3,8 m); las cuatro vueltas hasta alcanzar el último tramo alcanzan los 24 codos (11,4 m). El último tramo de escaleras atraviesa el machón central para alcanzar la azotea. Tiene seis peldaños con una altura global de 3 codos, lo que da a la última vuelta 5 codos de altura (2,35 m). Así, desde la base a la azotea la torre tiene 29 codos de altura (13,7 m).
Vista del frente norte del Alminar de Cuatrovitas

Tipología de arcos en Cuatrovitas
Las ventanas, tres en la cara oriental, dos y un recuadro ciego en las caras septentrional, occidental y meridional. Estas ventanas alternan vanos geminados con arcos de herradura ligeramente apuntados y con arcos polilobulados.



Hasta 1852 en que se adopta el Sistema Métrico Decimal en toda España, a lo largo de la historia coexistieron diferentes sistemas de medidas. Todos ellos usaban unidades de medidas basadas en el cuerpo humano, como el pie o el codo, y que se relacionaban entre sí en proporciones fijas (un codo equivalía a un pie y medio). Es importante saber con qué unidades medían para comprender cómo diseñaban sus construcciones. Para el mundo islámico sabemos que usaban unas medidas cuyo pie equivalía a 31,43 cm y nos permiten entender cómo se diseñó la antigua mezquita de Cuatrovitas.
La siguiente tabla muestra la comparación de las dimensiones de las diferentes unidades de medidas empleadas por el Imperio Romano, en al-Andalus y las medidas de los castellanos.
Tabla Interpretativa de medidas
|
|
Castellano |
|
Romano |
|
Islámico |
|
Dedo |
1,74 |
Digitus |
1,85 |
Assba |
1,96 |
|
Pulgada |
2,32 |
Uncia |
2,46 |
|
2,62 |
|
Palmo |
6,97 |
Palmus |
7,39 |
Qabda |
7,86 |
|
Palma |
20,90 |
Palmus maior |
22,18 |
Sibr |
23,57 |
|
Pie |
27,86 |
Pes |
29,57 |
|
31,43 |
|
Palmipié |
34,83 |
Palmipes |
36,96 |
|
39,28 |
|
Codo |
41,79 |
Cubitum |
44,36 |
Ma'muniyya |
47,14 |
|
7 palmos |
48,76 |
|
51,75 |
|
55 |
|
7,5 palmos |
52,24 |
|
55,44 |
Rassasiyya |
58,93 |
|
2 pies |
55,72 |
|
59,14 |
Arsh |
62,85 |
|
2,5 pies |
69,65 |
Gradus |
73,93 |
|
78,57 |
|
Vara |
83,58 |
|
88,71 |
Qasab |
94,28 |
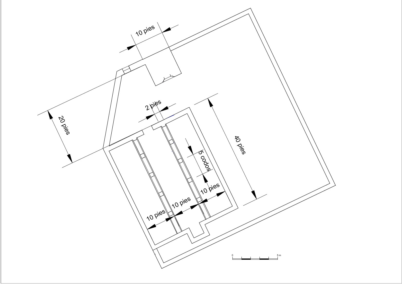
El patio de abluciones
El patio resulta pequeño por la falta de espacio para desarrollar plenamente el proyecto, como muestra el cejo del muro occidental condicionado por los edificios preexistentes. Tiene una longitud interior de 20 pies (6,3 m) y parece que se extendía por el lateral oriental de la sala de oraciones alcanzando los 30 pies de anchura (9,5 m) sin contar el muro, aunque este extremo no está completamente contrastado.
Arco de Herradura.

El interior
La mezquita de Cuatrovitas se construyó en el extremo sur del yacimiento, en un área ya ocupada por construcciones domésticas por lo que su construcción se vio limitada por la parcela existente lo que afectó a su tamaño y a su forma. El haram, o sala de oraciones, estaba compuesto por tres naves de 10 pies islámicos de anchura (3,14 m), aunque la central es mayor puesto que las laterales incluyen en esta medida los dos pies (63 cm) de anchura de los arcos. Longitudinalmente la sala mide 40 pies (12,5 m) incluyendo los muros que la delimitan de un grosor aproximado de 58 cm. De esta manera, el haram se divide en 5 arcos de 5 codos de anchura (2,35 m), a excepción del último que es ligeramente más estrecho para adaptarse a las dimensiones globales de la sala.
Los pilares que sostienen los arcos tienen una altura de 6 pies (1,88 m), mientras que los arcos tienen un diámetro equivalente, excepto el primero situado a los pies de la nave que es ligeramente inferior. El alfiz que enmarca cada arco está compuesto por un cuadrado de 5 codos (2,35 m) entre los ejes de los pilares y su base está en la línea de imposta.
La composición final de la sala queda definida por la altura de la sala de oraciones que es la mitad de su longitud de ahí que adquiera un valor no entero, de algo más de 18 pies, teniendo en cuenta que la longitud de la sala es de 40 pies menos el grosor de los muros que la cierran, es decir, en torno a 36 pies.
Paramentos originales hallados durante labores de conservación de la Ermita de Cuatrovitas







